Byt č. 510 2+kk mezonet o výměře 97,89 m2 v pátém nadzemním podlaží

Informace o bytě

Typ 2+kk mezonet
Orientace jih
Zařízený ano náhled zde
Vratná kauce 24 650
Stav volný od 2.2.2026

Měsíční platby

Služba Bez DPH DPH Včetně DPH Jednotka
Nájem 24 650 2 465 27 115 Kč/byt
Elektřina 5 541 1 164 6 705 Kč/byt
Topení * 9 434 1 981 11 415 Kč/byt
Voda 1 600 160 1 760 Kč/osoba
Celkem bez topení * 31 791 3 789 35 580
Celkem včetně topení * 41 225 5 770 46 995

* Topení se platí jen v zimní sezóně v měsících říjen - květen.
Možnost odpočtu DPH pro plátce daně.
Běžná spotřeba vody a elektřiny je placena paušálně ve výši uvedené v tabulce. Nadměrečná spotřeba může být doúčtována.

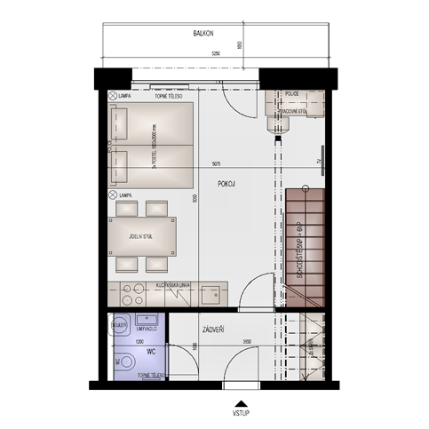
Rozměry bytu

balkon 5,78
pokoj s kuchyňským koutem 25,55
zádveří 5,80
WC 2,16
terasa 10,63
půdní komora 10,87
chodba 10,45
ložnice 18,42
koupelna 8,23
celkem 97,89

Podrobný popis bytu

Pronájem zařízeného mezonetového bytu 2+kk s terasou ve čtvrtém a pátém patře o celkové výměře 99,44 m2. Zádveří 5,80 m2, WC 2,16 m2, pokoj s kuchyňským koutem 25,55 m2, balkon 5,78 m2, chodba 10,45 m2, ložnice 18,42 m2, koupelna 8,23 m2, terasa 10,63 m2, půdní komora 12,42 m2. Okna, terasa i balkon jsou situovány na jižní stranu do dvorní části objektu. Vybavení bytu tvoří kuchyňský kout s kuchyňskou linkou v barvě Wenge a pracovní deskou Egger v barvě Jura černá se sklokeramickou varnou deskou Indesit VRM 640 MC se čtyřmi varnými zónami, komínový odsavač Elica Missy 60/IX, vestavěná mikrovlná trouba Baumatic BMC253SS s grilem a horkovzdušnou troubou, podstavná lednice indesit TFAA 10. Jídelní stůl, židle. Pracovní stůl a židle, čtyři postele 90 x 200 cm barva Wenge, které jdou sestavit samostatně, nebo jako dvojlůžko. V předsíni je vestavěná skříň. Koupelna s vanou 160 cm, umyvadlem a WC, koupelnová skříňka LeBon, barva Wenge. Topení ústřední s radiátory, ohřev teplé vody elektrickým inteligentním ohřívačem OKHE SMART se zásobníkem teplé vody pro 125 l. Bytová okna s izolačními trojskly.
Vzorová ukázka standardního zařízení bytu.

Kontaktujte nás

Máte-li zájem o podrobnější informace o bytě, či máte zájem byt rezervovat kontaktujte nás prostřednictvím tohoto formuláře. Nejpozději následující pracovní den se Vám ozveme.

Jméno a příjmení potřebujeme pro informaci, komu vlastně odpovídáme. Email potřebujeme znát, abychom měli kam odpovědět, někdy je jednodušší informace probrat telefonicky, proto prosím ideálně vyplňte i telefonní kontakt.

Ukázka bytu


Půdorys bytu

Umístění bytu

Průkaz energetické náročnosti budovy

Průkaz energetické náročnosti budovy - náhled